La Maison Palyï
La Maison Palyï (paille, en patois de Tignes)
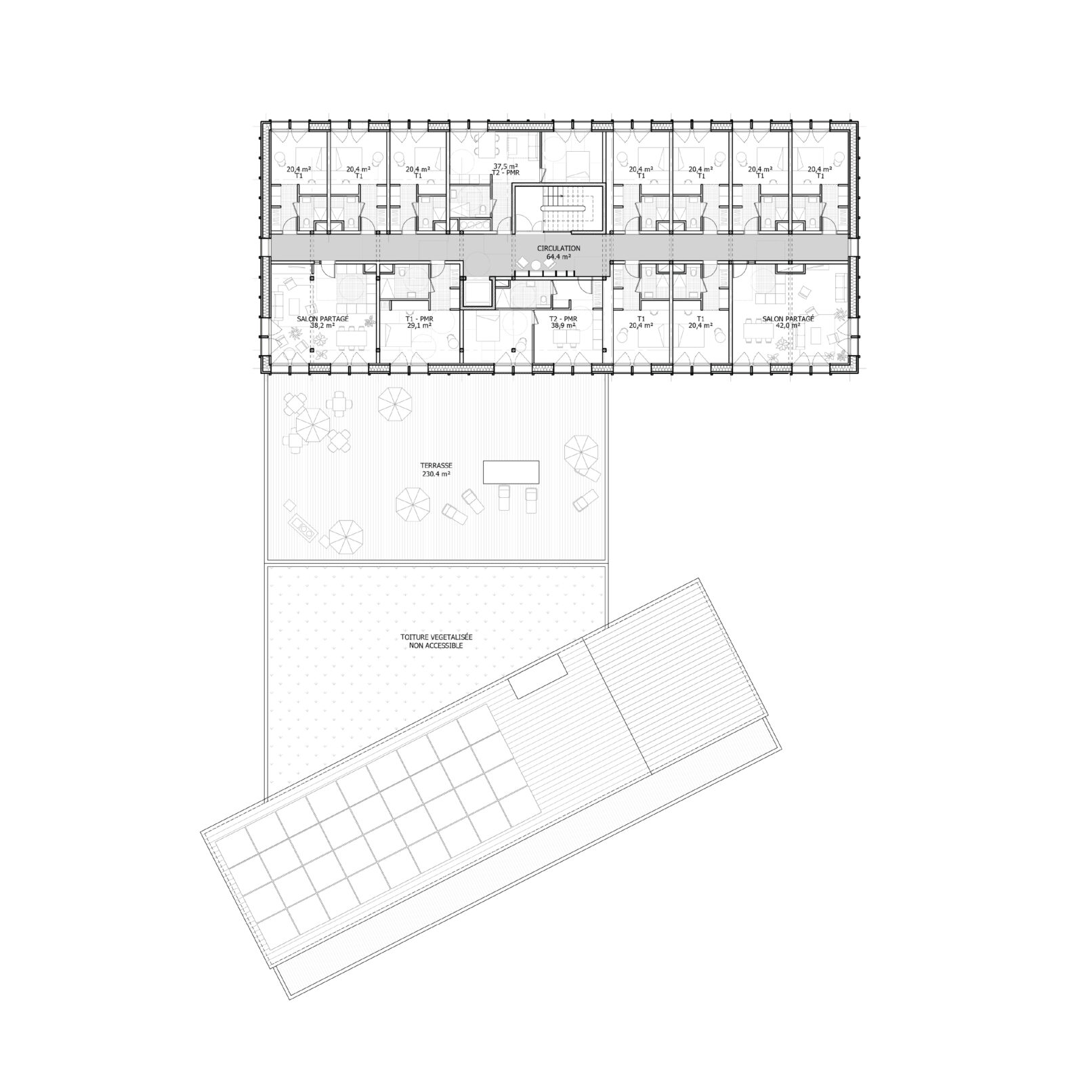
Ce programme de concours (non lauréat) regroupe entre 60 et 70 logements, une crèche de 60 berceaux et des stationnements sur une parcelle à forte déclivité à l’entrée de Tignes le Lac, aujourd’hui occupée par un chalet dont les premières traces remontent aux années 1960.
Au delà des surfaces dédiées au programme, le projet de la Maison Palyï propose une réponse à la question : comment habiter la montagne demain, aux première loges des mutations économiques et climatiques rapides ?
Équipe : ICMArchitectures (architecte mandataire) et Christophe Aubertin Collectif studiolada (architecte associé), AIS, Cotib, Alpes Acoustique, Terre-Eco
Perspectives : Jean-Jacques Begel







