Les habitants du presbytère
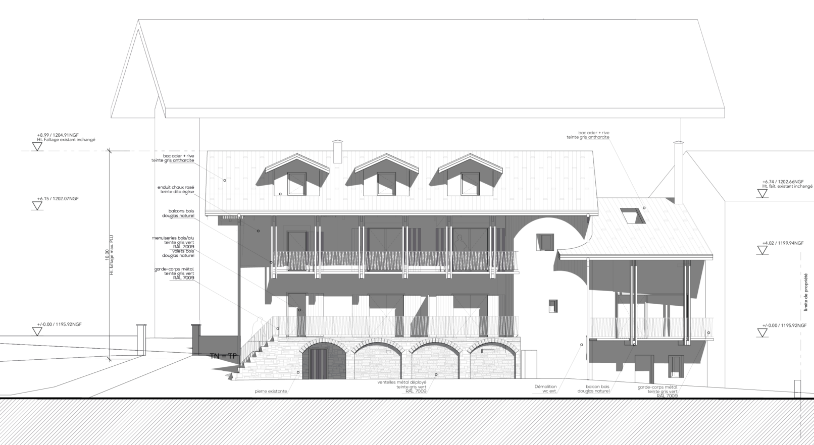
Situé au cœur du village, le presbytère de Champagny-en-Vanoise est un bâtiment emblématique, étroitement lié à l’église Saint-Sigismond voisine.
Implanté sur un promontoire de gypse, il témoigne d’une histoire ancienne marquée par l’instabilité de son socle, visible encore aujourd’hui à travers les nombreuses fissurations, notamment à la base du clocher.
Délaissé en tant que lieu de culte ces dernières décennies, le presbytère a accueilli quelques logements saisonniers, mais reste sous-utilisé. Face aux besoins de la commune en logements de fonction et saisonniers, le projet vise à transformer ce patrimoine fragile en un ensemble de six logements adaptés aux usages actuels.
L’intervention vise une réhabilitation respectueuse : conserver les marqueurs authentiques du bâtiment tout en assurant sa mise aux normes, sa pérennité structurelle, et son adaptation au climat montagnard. Le projet valorisera également l’ouverture du site sur le grand paysage, en inscrivant le bâtiment dans une logique de continuité et d’usage renouvelé.
Localisation : Champagny-en-Vanoise (Savoie)
Maîtrise d’ouvrage : Mairie de Champagny-en-Vanoise
Maîtrise d’œuvre : ICMArchitectures
Statut : Études en cours
Surface : 278 m²
Montant des travaux : 1 312 000 € HT
BET : Opteam Structures, COTIB
Mission : DIAG + mission de base + OPC + ECO
Perspectiviste : Studio Jean-Jacques BEGEL






